>>>

 

Gebed Zonder End 1A

 

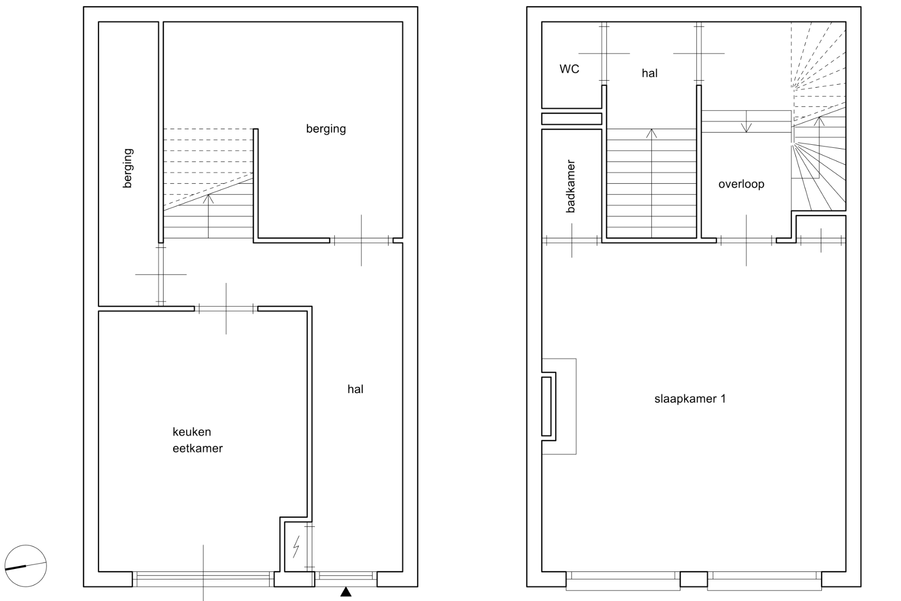
Bestaande situatie

 

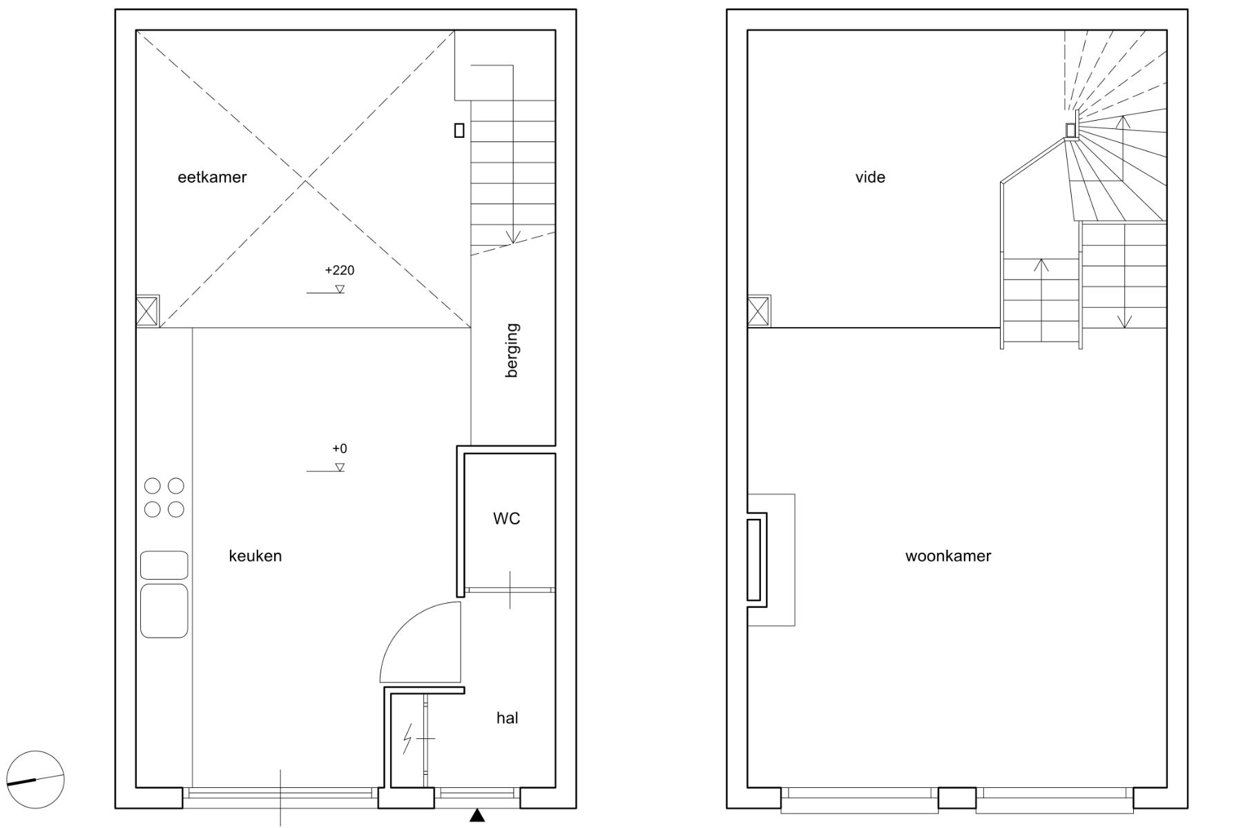
Nieuwe situatie

 

Het ruimtelijk concept voor de verbouwing van dit woonhuis in de binnenstad van Amsterdam levert twee verbeteringen op. Maximaal gebruik van de ruimte op de begane grond, plus maximale ingezet van het daglicht van de eerste verdieping. Doordat het lage plafond bij binnenkomst aan de achterzijde is open gebroken, ontstaat dankzij het relatief hoge plafond van de eerste verdieping een verrassende vide van 6 meter. De blinde achterwand wordt tot beneden in de keuken verlicht door daglicht.

De nieuwe, langs de zijwand geplaatste trap versterkt door zijn vertikale karakter de ruimtelijke verbinding van de twee ruimtes.